THE OASIS IS A 2 BEDROOM PLAN WITH VAULTED CEILINGS THROUGHOUT, THE KITCHEN IS L-SHAPED, THE BEDROOM HAS HIS AND HER CLOSETS.



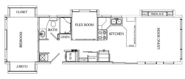
THE MONTEREY 5 IS A 2 BEDROOM PLAN WITH VAULTED CEILINGS THROUGHOUT, IT HAS A U-SHAPED KITCHEN, SPACIOUS LIVING ROOM, THE MASTER BEDROOM HAS HIS AND HER CLOSETS.



THE MONTEREY 5 IS A 2 BEDROOM PLAN WITH VAULTED CEILINGS THROUGHOUT, IT HAS A U-SHAPED KITCHEN, SPACIOUS LIVING ROOM, THE MASTER BEDROOM HAS HIS AND HER CLOSETS.



We use cookies to analyze website traffic and optimize your website experience. By accepting our use of cookies, your data will be aggregated with all other user data.